BostonLoftSpace.com > Boston > 281 Franklin Street #503

LRG Boston

(617) 233-5800

355 Boylston St

Boston, Ma 02116

281 Franklin Street #503

Boston, MA

Property Description

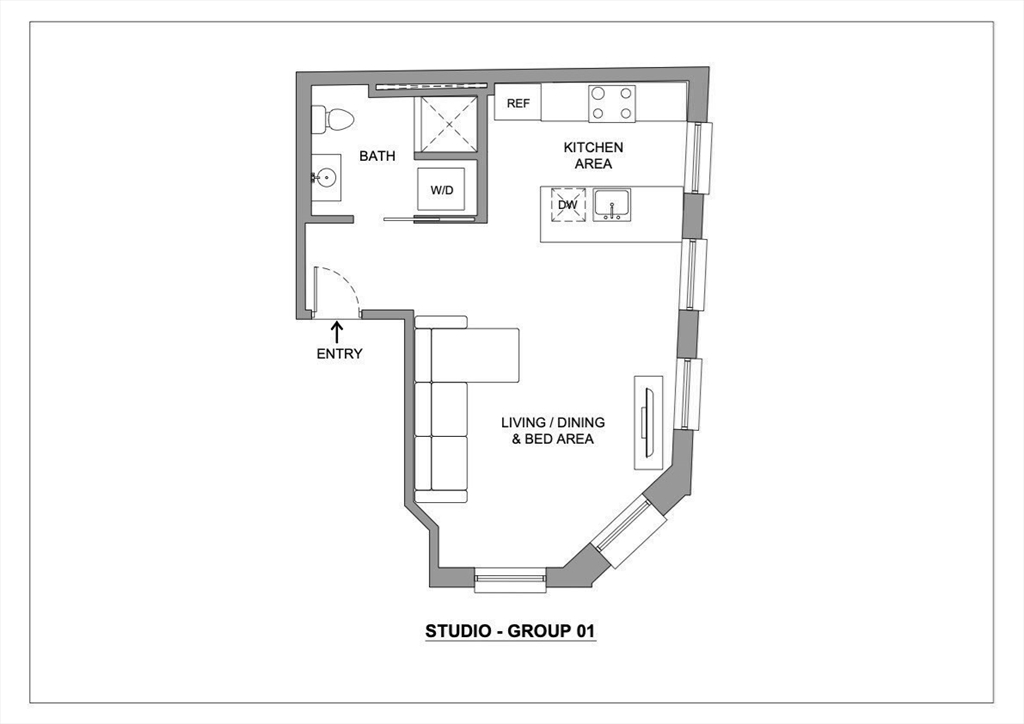
Welcome to 281 Franklin Street, a historic Downtown building reimagined for modern living. Unit 503 is a front-facing studio with expansive windows that fill the space with natural light, highlighting the soaring ceilings and exposed brick and beams. The open layout maximizes space, while the well-appointed kitchen features sleek cabinetry and premium appliances. Perfectly situated near top restaurants, shops, and public transit, this unit offers the best of city living in a charming, character-filled setting. Currently under construction and Available 9/1/25. No broker fee. This unit reflects similar residences in the building—contact the agent for full availability. Renderings are for marketing purposes; finishes and materials may vary.

offered at

$3,350

  • MLS #: 73346819
  • Full Baths: 1
  • Living Area: 452 sqft Convert
  • Lot Size: 2,139 sqft Convert

Additional Details

Type: , Apartment

Area: Faneuil

Zip Code: 02110

Unit Level: 5

Rooms and Dimensions

Total Rooms: 2

Contact: LRG Boston at (617) 233-5800

BostonLoftSpace.com

355 Boylston St. Boston, MA 02116

Map

Photos