BostonLoftSpace.com > Brookline > 16 Short St #4

LRG Boston

(617) 233-5800

355 Boylston St

Boston, Ma 02116

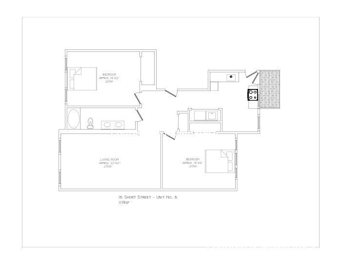
16 Short St #4

Brookline, MA

Property Description

Massive Unit- Pet Friendly 2 Bedroom in Coolidge Corner with central air, porch in unit laundry. Charming and well-maintained unit located on a quiet side street in the heart of Brookline. This bright apartment features an efficient layout with sun-filled living space, hardwood floors, and a modern kitchen with updated appliances and ample cabinet storage. Spacious bedroom(s) offer great natural light and closet space, while the bathroom is clean and well cared for. Conveniently situated near shops, restaurants, parks, and public transportation, with easy access to Coolidge Corner, Longwood Medical Area, and major routes. A great opportunity to enjoy Brookline living in a peaceful residential setting.Available March 1st, no parking

offered at

$3,950

  • MLS #: 73471831
  • Bedrooms: 2
  • Full Baths: 1
  • Living Area: 1,150 sqft Convert
  • Lot Size: 1,500 sqft Convert

Additional Details

Type: , Apartment

Zip Code: 02446

Unit Level: 2

Rooms and Dimensions

Total Rooms: 4

Contact: LRG Boston at (617) 233-5800

BostonLoftSpace.com

355 Boylston St. Boston, MA 02116

Map

Photos