BostonLoftSpace.com > Somerville > 1 Fitchburg St #C303

LRG Boston

(617) 233-5800

355 Boylston St

Boston, Ma 02116

1 Fitchburg St #C303

Somerville, MA

Property Description

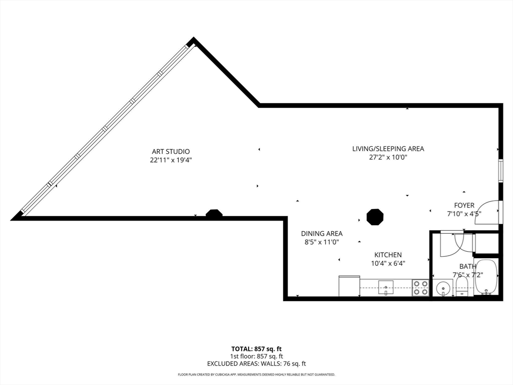
Loft living at its best in the iconic Brickbottom Artist Lofts. Unit C303 is a south-facing, third-floor residence with soaring ceilings, oversized windows, and excellent natural light throughout the day. This flexible studio-style layout offers defined living, dining, and work areas, ideal for creatives or anyone seeking an open, adaptable space. Freshly painted throughout, including the concrete floors, the unit presents a clean, gallery-like feel ready for its next owner. Features include an open kitchen, full bath with tub, and generous storage. One off-street, assigned parking space is included. Elevator building with common laundry, courtyard, and professional management. Conveniently located near Assembly Row, the Green Line, and ongoing neighborhood improvements including the Art Farm project, adding long-term vibrancy to this evolving district. A unique opportunity to own in one of Somerville’s most distinctive communities.

offered at

$569,900

  • MLS #: 73472772
  • Bedrooms: 1
  • Full Baths: 1
  • Living Area: 827 sqft Convert

Additional Details

Type: , Condominium

Style: Mid-Rise

Area: Brickbottom-Inner Belt

Zip Code: 02143

HOA Fee: $498

Living Levels: 1

Unit Level: 3

Parking

Garage Capacity: 1

Parking: Off Street, Assigned

Parking Spaces: 1

Rooms and Dimensions

Total Units: 155

Total Floors: 1

Total Rooms: 2

Contact: LRG Boston at (617) 233-5800

BostonLoftSpace.com

355 Boylston St. Boston, MA 02116

Map

Photos