BostonLoftSpace.com > Boston > 37 Fenton St #3

LRG Boston

(617) 233-5800

355 Boylston St

Boston, Ma 02116

37 Fenton St #3

Boston, MA

Property Description

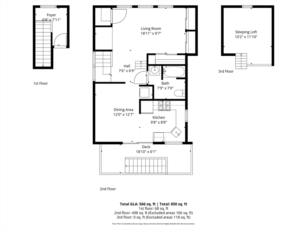
Available April 1st. Welcome home to this bright and efficient lofted 1 bed/1 bath residence, perfectly suited for those seeking comfort, convenience, and style. Thoughtfully laid out and filled with natural light, the unit features hardwood floors throughout, central air, and in-unit laundry. The open living space is anchored by a large eat-in kitchen boasting stainless steel appliances and gas cooking, ideal for anyone who enjoys cooking at home, while oversized windows and skylights create an airy, sun-filled atmosphere. Lofted bedroom that accommodates a queen-sized bed. Step outside to a private balcony, perfect for morning coffee. Additional perks include ONE OFF-STREET PARKING SPACE INCLUDED and extra outdoor storage, a rare and valuable bonus. Commuting is seamless with close proximity to the Red Line Field's Corner stop for a quick ride into downtown Boston, or easy access to I-93 for drivers. One pet welcome, either a cat or a dog under 25 lbs. 24 hr notice required to show.

offered at

$2,250

  • MLS #: 73484650
  • Bedrooms: 1
  • Full Baths: 1
  • Living Area: 566 sqft Convert
  • Lot Size: 9,999 sqft Convert

Additional Details

Type: , Apartment

Area: Dorchester

Zip Code: 02122

Unit Level: 3

Parking

Garage Capacity: 1

Parking Spaces: 1

Rooms and Dimensions

Total Rooms: 4

Contact: LRG Boston at (617) 233-5800

BostonLoftSpace.com

355 Boylston St. Boston, MA 02116

Map

Photos