BostonLoftSpace.com > Cambridge > 1576 Cambridge St #1F

LRG Boston

(617) 233-5800

355 Boylston St

Boston, Ma 02116

1576 Cambridge St #1F

Cambridge, MA

Property Description

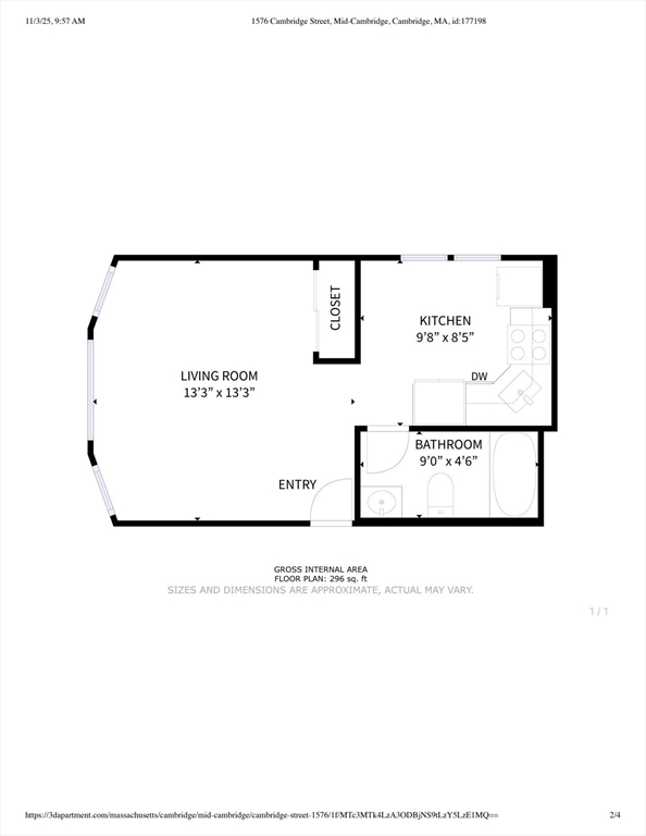
Brand New Renovation. Charming Studio Apartment in the Heart of Cambridge. Perfect blend of charm, space, and comfort in this beautifully designed studio apartment, ideally located in one of Cambridge’s most desirable neighborhoods.W/D in unit.Step inside and you’ll be greeted by a spacious, open layout with a thoughtfully designed living area that makes excellent use of space. The high ceilings and wooden flooring create an inviting atmosphere, while large windows fill the home with natural light. The kitchen is both stylish and functional with stainless appliances and granite counters. The bedroom area provides comfort and warmth with its wooden finishes, giving the space a cozy yet elegant touch. The full bathroom is well-appointed, offering convenience and ease. This home truly combines charm and efficient use of space making it a rare find in Cambridge. Owners willing to waive LMR being paid up front for qualified applicants.

offered at

$2,975

  • MLS #: 73486568
  • Bedrooms: 1
  • Full Baths: 1
  • Living Area: 400 sqft Convert

Additional Details

Type: , Apartment

Zip Code: 02138

Unit Level: 1

Rooms and Dimensions

Total Rooms: 1

Contact: LRG Boston at (617) 233-5800

BostonLoftSpace.com

355 Boylston St. Boston, MA 02116

Map

Photos