BostonLoftSpace.com > Worcester > 70 Southbridge St, #504

LRG Boston

(617) 233-5800

355 Boylston St

Boston, Ma 02116

70 Southbridge St, #504

Worcester, MA

Property Description

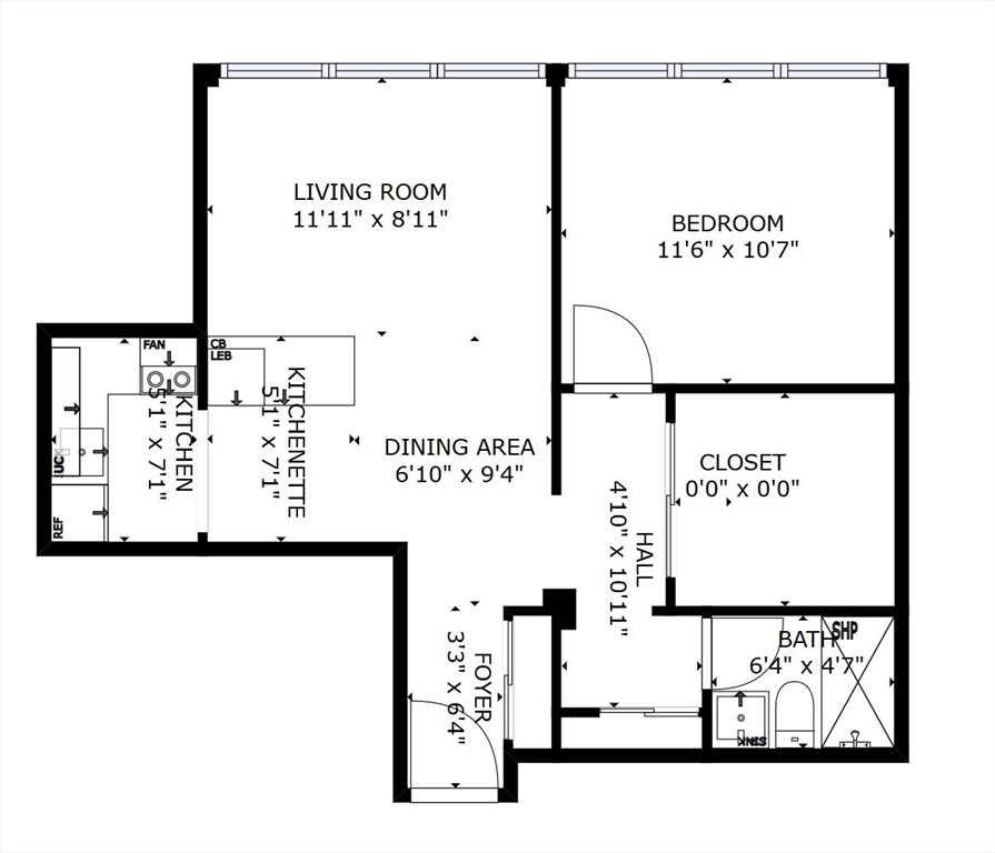
One rent payment! No other bills! At Madison Tower, your $1,900 covers everything: heat, electricity, water, sewer, air conditioning, cable, WiFi, and one deeded parking spot. Nothing else to pay. Cable and WiFi included in condo fee via Spectrum; cable package includes basic cable with HBO. This stunning 5th floor one-bedroom has been completely renovated with a granite kitchen featuring stainless steel appliances, center island, and open shelving. Vinyl plank flooring runs throughout the open living space and bedroom. The updated bathroom features a new vanity and walk-in shower. Wake up to views of Polar Park and the outdoor pool right from your window. Building amenities include a pool, fitness center, and on-site laundry. You are steps from Polar Park, the Hanover Theatre, DCU Center, top dining, and public transit. 680 credit score desired. No pets. Stop paying separate utility bills and start living smarter in the heart of Worcester. Inquire today before it's gone.

offered at

$1,900

  • MLS #: 73490234
  • Bedrooms: 1
  • Full Baths: 1
  • Living Area: 550 sqft Convert

Additional Details

Type: , Condominium

Zip Code: 01608

Unit Level: 5

Parking

Garage Capacity: 1

Parking Spaces: 1

Rooms and Dimensions

Total Rooms: 3

Contact: LRG Boston at (617) 233-5800

BostonLoftSpace.com

355 Boylston St. Boston, MA 02116

Map

Photos