BostonLoftSpace.com > Cambridge > 35 Essex St #1

LRG Boston

(617) 233-5800

355 Boylston St

Boston, Ma 02116

35 Essex St #1

Cambridge, MA

Property Description

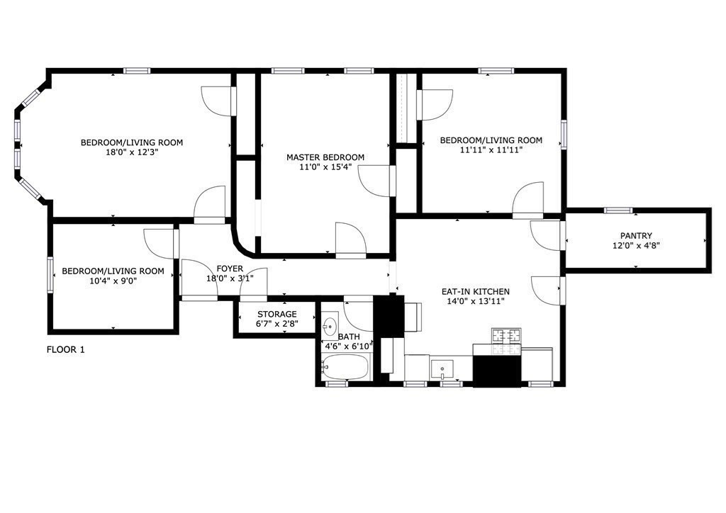
Live in one of Cambridge's most coveted neighborhoods, just a 3 minute walk to Central Square and perfectly situated between MIT and Harvard. This well maintained 3 bedroom, 1 bath home offers unbeatable access to the Red Line MBTA station, multiple bus routes, and an easy commute to Longwood. Occupying the expansive first floor of a well maintained building, this residence exudes classic charm with soaring ceilings, gleaming hardwood floors, and three generously proportioned bedrooms. The renovated eat-in kitchen blends style and function, featuring new countertops, a professional grade gourmet faucet, a new dishwasher, and an adjoining bonus room ideal for a walk-in pantry or private storage. Residents enjoy the convenience of complimentary on-site laundry and an incredibly convenient location. Whole Foods is one block away, H Mart is two blocks away, and an array of acclaimed restaurants, cafés, bars, breweries, boutiques, and fitness studios surround you.

offered at

$5,000

  • MLS #: 73498713
  • Bedrooms: 3
  • Full Baths: 1
  • Living Area: 1,200 sqft Convert
  • Lot Size: 9,999 sqft Convert

Additional Details

Type: , Apartment

Zip Code: 02139

Unit Level: 1

Rooms and Dimensions

Total Rooms: 4

Contact: LRG Boston at (617) 233-5800

BostonLoftSpace.com

355 Boylston St. Boston, MA 02116

Map

Photos