BostonLoftSpace.com > Braintree > 38 Roosevelt St

LRG Boston

(617) 233-5800

355 Boylston St

Boston, Ma 02116

38 Roosevelt St

Braintree, MA

Property Description

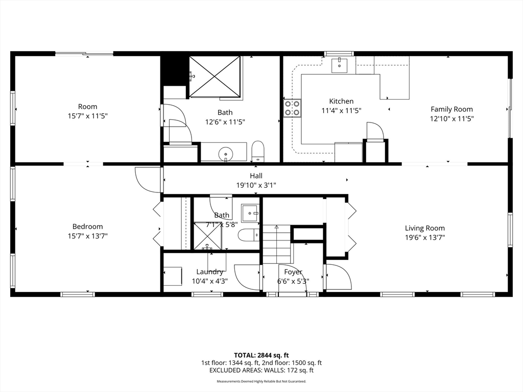
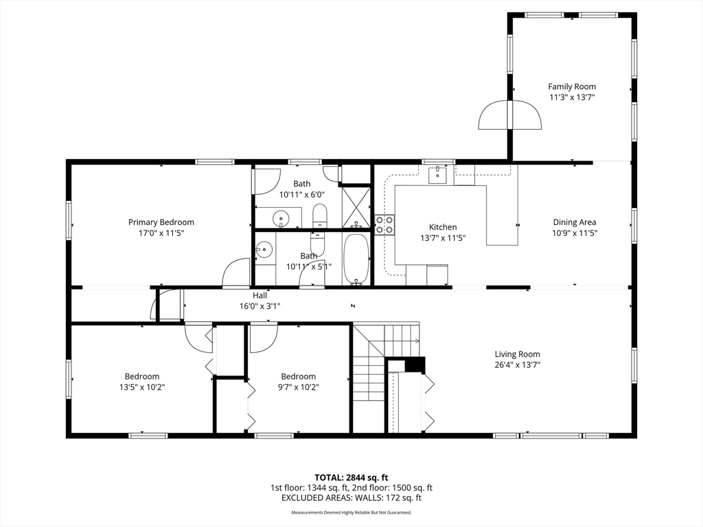
Welcome to this well-maintained 4-bedroom, 4-bathroom home offering flexible living space across two levels.The first floor features a 1-bedroom, 2-bathroom layout, while the second floor offers 3 bedrooms and 2 bathrooms, making it ideal for extended families, roommates, or those seeking additional space.The home features hardwood floors, bright and open living areas, a functional kitchen, and plenty of natural light throughout. A private outdoor area provides a great space to relax or enjoy outdoor time.Tenants pay for all utilities. Tenants with good credit are required. First month's rent and one month's security deposit are due at lease signing.

offered at

$5,000

  • MLS #: 73508024
  • Bedrooms: 4
  • Full Baths: 4
  • Living Area: 3,360 sqft Convert
  • Lot Size: 18,069 sqft Convert

Additional Details

Zip Code: 02184

Unit Level: 2

Parking

Garage Capacity: 6

Contact: LRG Boston at (617) 233-5800

BostonLoftSpace.com

355 Boylston St. Boston, MA 02116

Map

Photos