BostonLoftSpace.com > Boston > 295 Beacon #32

LRG Boston

(617) 233-5800

355 Boylston St

Boston, Ma 02116

295 Beacon #32

Boston, MA

Property Description

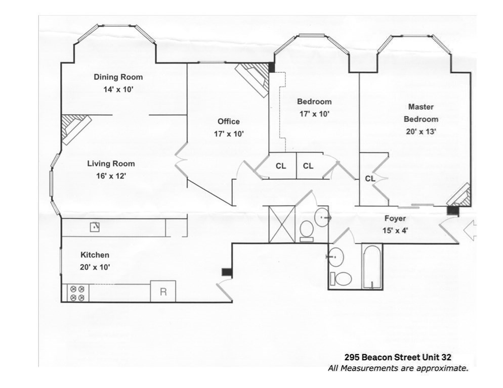
Available July 1st. Beautifully renovated 3 bed / 2 bath home on the third floor of a professionally managed elevator building. This bright, sun-filled unit boasts oversized west- and south-facing windows for all-day natural light. A versatile layout offers living area with decorative fireplace, dining area with peekaboo river views, bonus room ideal for office or guest space. Almost new chef’s kitchen with gas range, quartz counters, and stainless steel appliances. Spacious primary bedroom fits a king bed with custom built-in nightstands, ample closets, and decorative fireplace. Second bedroom features a custom-made Murphy bed with built-in shelving. Enjoy one of the best shared roof decks in Back Bay with spectacular views. Prime location near the MIT, Harvard, Public Garden, Esplanade, and Newbury Street’s shops and restaurants. The unit also has mini-split AC and washer/dryer. Heat, hot water, bike storage, extra storage included with rent. Sorry no undergrads or smoking.

offered at

$6,200

  • MLS #: 73508806
  • Bedrooms: 3
  • Full Baths: 2
  • Living Area: 1,131 sqft Convert
  • Lot Size: 9,999,999 sqft Convert

Additional Details

Area: Back Bay

Zip Code: 02116

Unit Level: 3

Contact: LRG Boston at (617) 233-5800

BostonLoftSpace.com

355 Boylston St. Boston, MA 02116

Map

Photos